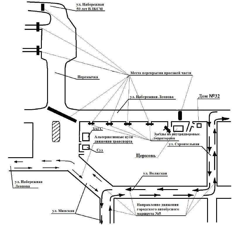
Завтра, 8 июля, в Балакове пройдет крестный ход в честь святых Петра и Февронии. В связи с этим с 17.00 будет ограничено движение транспорта на набережным Леонова и 50 лет ВЛКСМ. Об этом сообщает администрация Балаковского района.

Участники шествия начнут свой путь от Храма святого Иоанна Богослова и проследуют до памятника Петру и Февронии, установленного в сквере на мысе Ерошкина.
На время проведения мероприятия изменится маршрут автобусов №5: они свернёт с набережной Леонова на улицу Строительную, затем проследует по Волжской и выйдет на улицу Минскую. В таком же порядке они вернутся обратно.
Ограничения будут действовать до завершения крестного хода. Движение планируют возобновить около 20.00.
Балаковцев просят заранее планировать свой маршрут в этом районе и с пониманием отнестись к предпринятым мерам безопасности.
Недавно мы рассказывали о том, что В Балаково хулиганы расстреляли троллейбус с пассажирами
Хотите увидеть свою новость в ленте, привлечь внимание к проблеме или рассказать о событии? Пишите нам! Balakovo.Online — 8-927-915-54-44 — WhatsApp,Telegram, Viber, соцсети. За фото и видео скажем отдельное спасибо!
Подписывайтесь на наш Телеграм-канал. Здесь — всё о жизни Балакова.